Casa Elemental
Tasarım
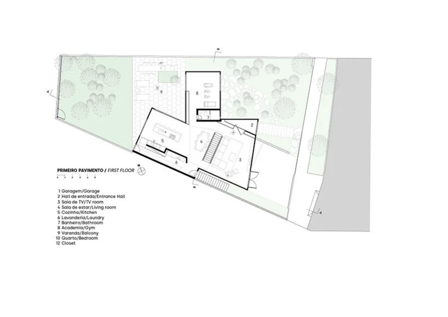
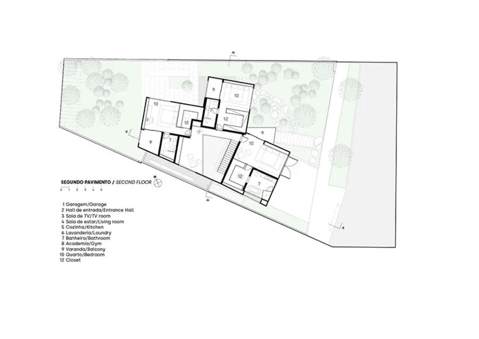
Casa Elemental, Brezilya’da yer alan modern ve minimalist bir tasarım olarak tanımlanabilir. Tasarım Estudio Zargos tarafından yapılmıştır ve doğal malzemeler ve enerji verimliliği üzerine odaklanmıştır. Ev açık bir düzenlemeye sahiptir ve büyük pencerelerle doludur, doğal ışığa ve çevresel manzaraya müsaade eder. Ahşap ve beton kullanımı evi sıcak ve misafirperver bir his verirken, yağmur suyu toplama ve güneş enerjisi gibi sürdürülebilir tasarım unsurlarının kullanımı çevresel etkisini azaltmaya yardımcı olur. Casa Elemental, sürdürülebilir ve çağdaş tasarımın güzel bir örneğidir.

















Sürdürülebilirlik
Konut tasarımında sürdürülebilirlik için dikkat edilmesi gerekenler nelerdir?
Konut tasarımında sürdürülebilirlik için dikkat edilmesi gereken birkaç önemli nokta şunlar olabilir:
- Enerji verimliliği: Konutların ısıtma, soğutma, aydınlatma ve elektrik ihtiyacını azaltmak için enerji verimli özelliklere sahip olmaları gerekir. Bu, bina yalıtımı, enerji tasarruflu aydınlatma ve enerji üreten sistemler gibi özellikleri içerebilir.
- Su tasarrufu: Konutlar su tasarrufu için özelliklere sahip olmalıdır. Bu, su tasarruflu duş başlıkları, musluklar ve tuvaletler gibi ekipmanları içerebilir.
- Doğal kaynakların kullanımı: Konutlar doğal kaynakların kullanımını azaltmak için özelliklere sahip olmalıdır. Bu, güneş enerjisi, rüzgar enerjisi veya biyogaz gibi enerji üreten sistemleri içerebilir.
- Çevre dostu malzemeler: Konutlar çevre dostu malzemeler kullanılarak inşa edilmelidir. Bu, geri dönüştürülmüş malzemeler, doğal malzemeler veya yerli malzemeler gibi malzemeler içerebilir.
- Yeşil alanlar: Konutlar yeşil alanlar ve bitki örtüsü içermelidir. Bu, bahçeler, teraslar veya yeşil çatılar gibi alanlar içerebilir.
- Ulaşım : Konutların yerleşim alanlarına yakın olması veya toplu taşıma araçlarına yakın olması önemlidir. Bu, yürüyüş veya bisiklet yolları, yerleşim alanlarına yakın park etme veya toplu taşıma araçlarına yakın olması gibi özellikleri içerebilir.
2007 – 2022 yılları arasında Hande Tozun Interior Design Studio’da Lead Designer olarak 15’ten fazla beş yıldızlı otel projesine imza attım. 2022’den itibaren Cruise Gemi iç mekan tasarım firması olan Cita Design Studio da Head Of Design görevini yürütüyorum.